4525 RHODES DRIVE Unit# 700 - $10.95

Grocery Stores
Schools
Restaurants
Gas Stations
Banks
Parks
Transit
Police
Fire Station
Place of Worship
Please select an amenity above to view a list.

4525 RHODES DRIVE Unit# 700,Windsor - $10.95 - Directions


  Request Information    Mortgage Calculator    Get Listing Brochure    Return to Listings  

Property Specs:

Lease$10.95
CityWindsor, ON
Address4525 RHODES DRIVE Unit# 700
Listing ID25016216
FlooringCushion/Lino/Vinyl
Land Size520 X / 3.292 AC
TypeWarehouse
StatusFor lease

Extended Features:

Ownership LeaseholdHeating Fuel Electric, Natural gas

Details:

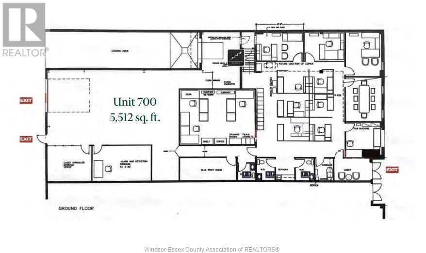
5,212 SF GROUND FLOOR SPACE. LOCATED IN THE DELTA PARK BUSINESS COMPLEX, UNIT 700 OFFERS A WAREHOUSE AREA AND FINISHED OFFICES. ACCESS VIA DRIVE-IN DOOR AND TRUCK DOCK. IDEALLY POSITIONED FOR WAREHOUSING AND MANUFACTURING OPERATIONS AND ARE WELL LOCATED BETWEEN CENTRAL AVENUE & JEFFERSON, WITH IMMEDIATE ACCESS TO EC ROW EXPRESSWAY. (id:4555)

LISTING OFFICE:
Remax Capital Diamond Realty, Tammy Williams

Comments / Live Discussion


Need Expert Advice?

JS Real Estate Team
Jason Sekhon
Sales Representative
519-981-1579


Sharan Sekhon
Sales Representative
519-965-2492

Have a Question?


Loading...